Whatsapp »
+507 6847-7001
apartments

Beautiful apartments in villa de las fuentes

Apartments for sale in Villa de las fuentes
Contact InmoPanama
We respond in minutes!
Property no longer available.
Find the right apartment for you.
Contact our experts now.
Or contact us by whatsapp:
+507 6847-7001
View photos »
Want to see properties similar to this one? We have properties with the same characteristics.
Price:
Check price
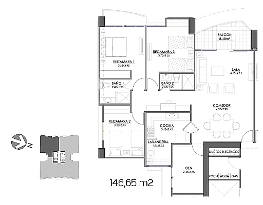
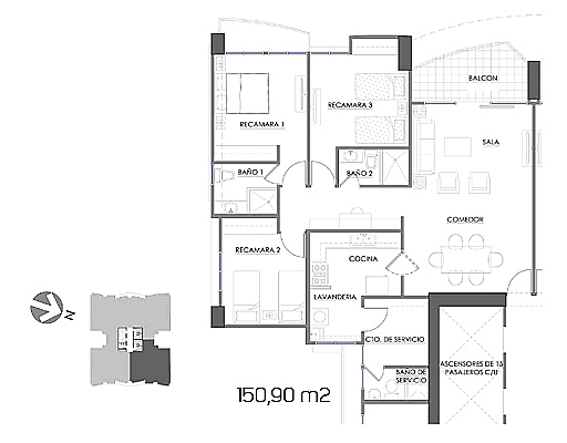
Bedrooms:
1
Bathrooms:
1
Size:
118m²
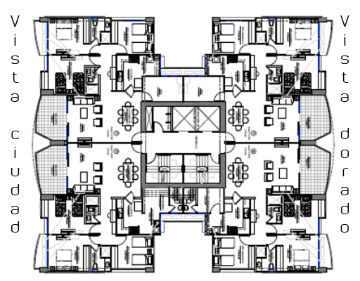
Beautiful apartments in villa de las fuentes Apartments in the highest of villas de las fuentes, just steps from el dorado, in the most prosperous area of the
Want to see properties similar to this one? We have properties with the same characteristics.
Villa de las fuentes real estate
Apartments in Villa de las fuentes
Send properties
We have found 7 properties.
Write the WhatsApp where you want to receive them: