Whatsapp »
+507 6847-7001
casas

Formidables casas en venta - proyecto petaluna lirio - ven a verlas

Venta de casas en Las Tablas
Contactar a InmoPanama
¡Respuesta en minutos!
Anuncio Vencido.
Encuentre la casa perfecto para usted.
Deje en nuestras manos la búsqueda de su casa.
Consultas por Whatsapp las 24hs:
+507 6847-7001
Ver fotos »
¿Quieres ver propiedades similares a esta? Tenemos propiedades con las mismas caracteristicas.
Precio:
Consultar
Habitaciones:
1
Baños:
1
Tamaño:
250m²
¡Aprovecha nuestros descuentos especiales!
Compra ahora y financia facilmente
Pago inicial:
$ *.***
Letra quincenal:
$ ***
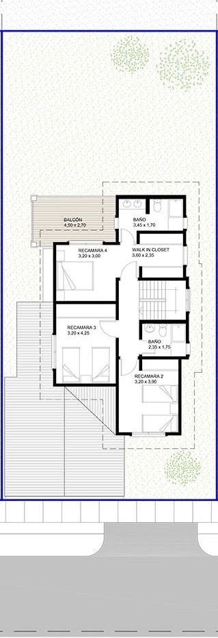
Formidables casas en venta - proyecto petaluna lirio - ven a verlas Residencial petaluna es un exclusivo desarrollo residencial situado en la ciudad de las tablas. rodeado de naturaleza, le hará disfrutar del placer de vivir al aire libre o de la magia de pasear por
Ubicacion:
Las Tablas
Casas » Panamá » Los Santos » Las Tablas
¿Quieres ver propiedades similares a esta? Tenemos propiedades con las mismas caracteristicas.
Bienes raices Las Tablas
Casas en Las Tablas
Enviar propiedades
Actualmente encontramos 8 propiedades.
Escribe el Whatsapp donde quieres recibirlas: