Whatsapp »
+507 6847-7001
locales comerciales

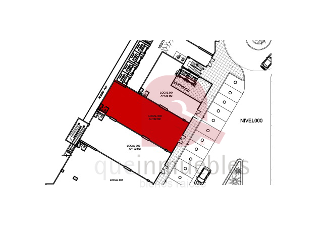
Local comercial en venta de 192mt2, vÍa brasil cod. 0888

Venta de locales comerciales en Via brasil
Contactar a InmoPanama
¡Respuesta en minutos!
Anuncio Vencido.
Encuentre el local comercial perfecto para usted.
Deje en nuestras manos la búsqueda de su local comercial.
Consultas por Whatsapp las 24hs:
+507 6847-7001
Ver fotos »
¿Quieres ver propiedades similares a esta? Tenemos propiedades con las mismas caracteristicas.
Precio:
$1.536.000
Tamaño:
192m²
¡Aprovecha nuestros descuentos especiales!
Compra ahora y financia facilmente
Pago inicial:
$ **.***
Letra quincenal:
$ *.***
Local comercial en venta de 192mt2, vÍa brasil cod. 0888 Pre-venta de locales comerciales en panamÁ, entrega principios de 2015. pre-venta de local comercial en vÍa brasil, 192mt2, se entrega en gris, planta baja, 1 baño, este local goza de una ubicació
Ubicacion:
Via brasil
¿Quieres ver propiedades similares a esta? Tenemos propiedades con las mismas caracteristicas.
Bienes raices Via brasil
Locales comerciales en Via brasil
Enviar propiedades
Actualmente encontramos 8 propiedades.
Escribe el Whatsapp donde quieres recibirlas: