Whatsapp »
+507 6847-7001
locales comerciales

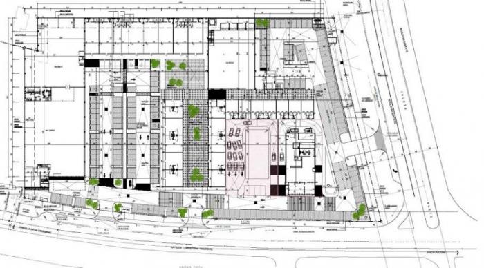
Locales en alquiler ave. jose agustin arango, tocumen 16-230, nbh

Alquiler de locales comerciales en Tocumen
Contactar a InmoPanama
¡Respuesta en minutos!
Anuncio Vencido.
Encuentre el local comercial perfecto para usted.
Deje en nuestras manos la búsqueda de su local comercial.
Consultas por Whatsapp las 24hs:
+507 6847-7001
Ver fotos »
¿Quieres ver propiedades similares a esta? Tenemos propiedades con las mismas caracteristicas.
Precio:
Consultar
Tamaño:
55m²
Locales en alquiler ave. jose agustin arango, tocumen 16-230, nbh Excelentes locales comercial (diferentes precios, medidas y ubicación), ubicado en la novedosa plaza santa fe, la cual contará con la presencia de mc donalds, mr precio, cochez y caja de ahorros lo
Ubicacion:
Tocumen
Locales comerciales » Panamá » Provincia de Panamá » Ciudad de Panamá » Tocumen
¿Quieres ver propiedades similares a esta? Tenemos propiedades con las mismas caracteristicas.
Bienes raices Tocumen
Locales comerciales en Tocumen
Enviar propiedades
Actualmente encontramos 8 propiedades.
Escribe el Whatsapp donde quieres recibirlas: